











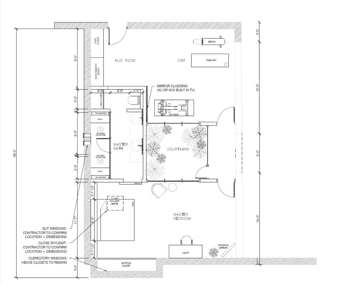
Interior Design Renovation for a Single-Family House originally built in 1962, blending in the old vernacular architecture with a modern, clean, sleek theme. This included highlighting the original window frames and structure, while treating and preserving the original red brick flooring.

























Interior Design Renovation for a Single-Family House originally built in 1962, blending in the old vernacular architecture with a modern, clean, sleek theme. This included highlighting the original window frames and structure, while treating and preserving the original red brick flooring.
